Zweifamilienhaus im Stadtzentrum

CH-6962 Viganello, Lugano Viganello

CHF 1'280'000.-

Beschreibung

Zu verkaufen in Viganello, in strategischer Lage: ein Renditegebäude mit zwei Wohnungen, das noch über ungenutzte Baureserven verfügt, unter Vorbehalt der Genehmigung durch die Gemeinde und die angrenzenden Anwohner.

Die Parzelle von 477 m² , befindet sich in der Zone R7i , aufgeteilt zwischen Wohnhaus, Garage und Garten.
Die Immobilie ist hauptsächlich für Wohn- und nicht störende Gewerbenutzung vorgesehen und liegt in unmittelbarer Nähe aller wichtigen Dienstleistungen: Supermarkt und Apotheke sind 350 m entfernt, der Spielplatz 500 m, die Post ist in ca.5 Minuten zu Fuss erreichbar, ebenso wie das Lido von Lugano in ca. 10 Minuten. Kindertagesstätten, Kindergärten, Grundschulen und eine Bushaltestelle befinden sich in unmittelbarer Umgebung.

Das Gebäude wurde 2006 vollständig renoviert (Wärmedämmung mit Fassadenisolierung, Fenster, Fußbodenheizung mit Luft-Wasser-Wärmepumpe, Küchen, Bäder, Wandverkleidungen, Böden, Türen und Innenausstattungen) und befindet sich in gutem Zustand.
Die Liegenschaft ist wie folgt aufgeteilt:

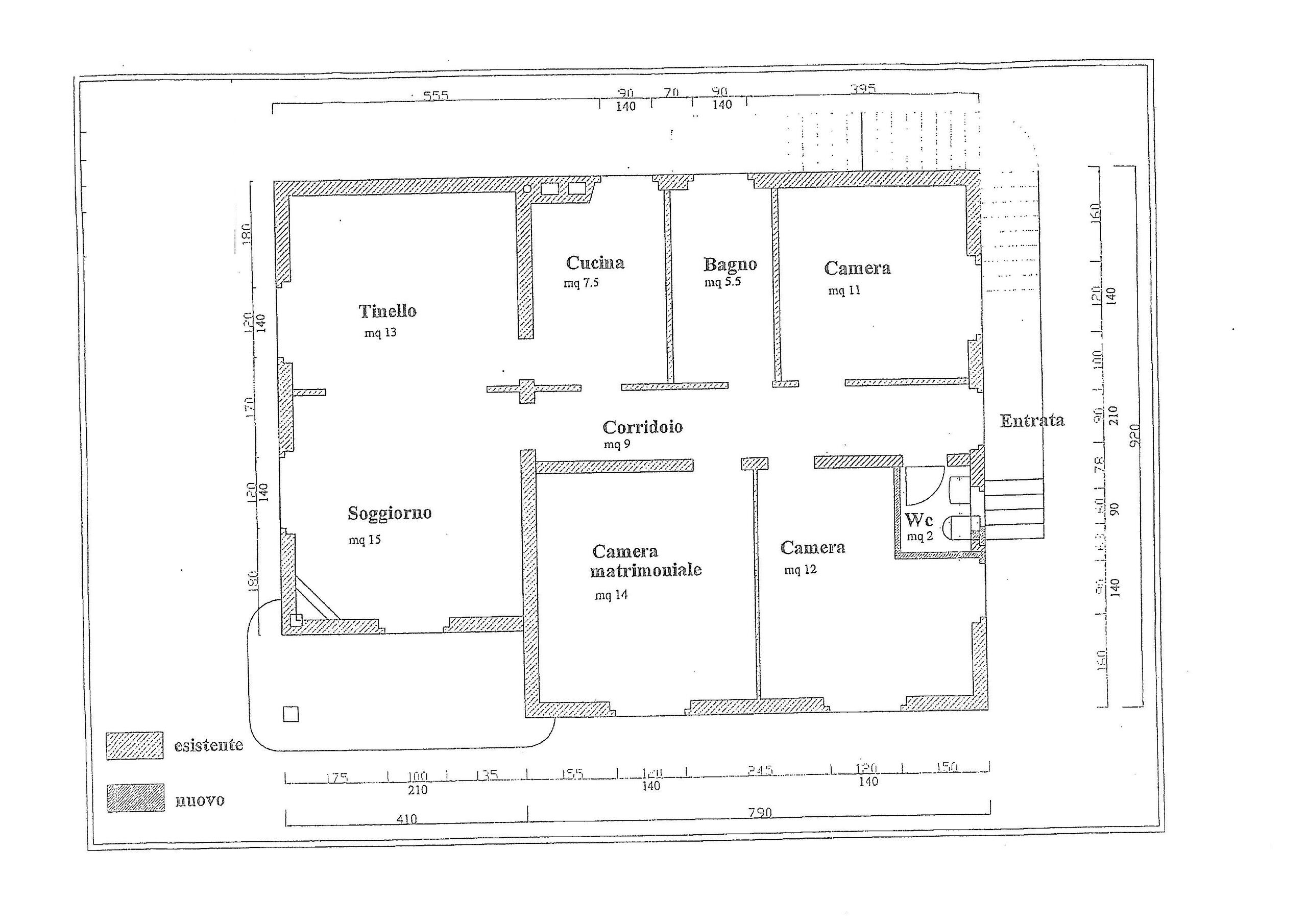
  • Erdgeschoss (leicht erhöht): 4.5-Zimmer-Wohnung mit Wohnzimmer und Zugang zur Terrasse, Küche, Hauptschlafzimmer, zwei weitere Schlafzimmer, Badezimmer und Gäste-WC.
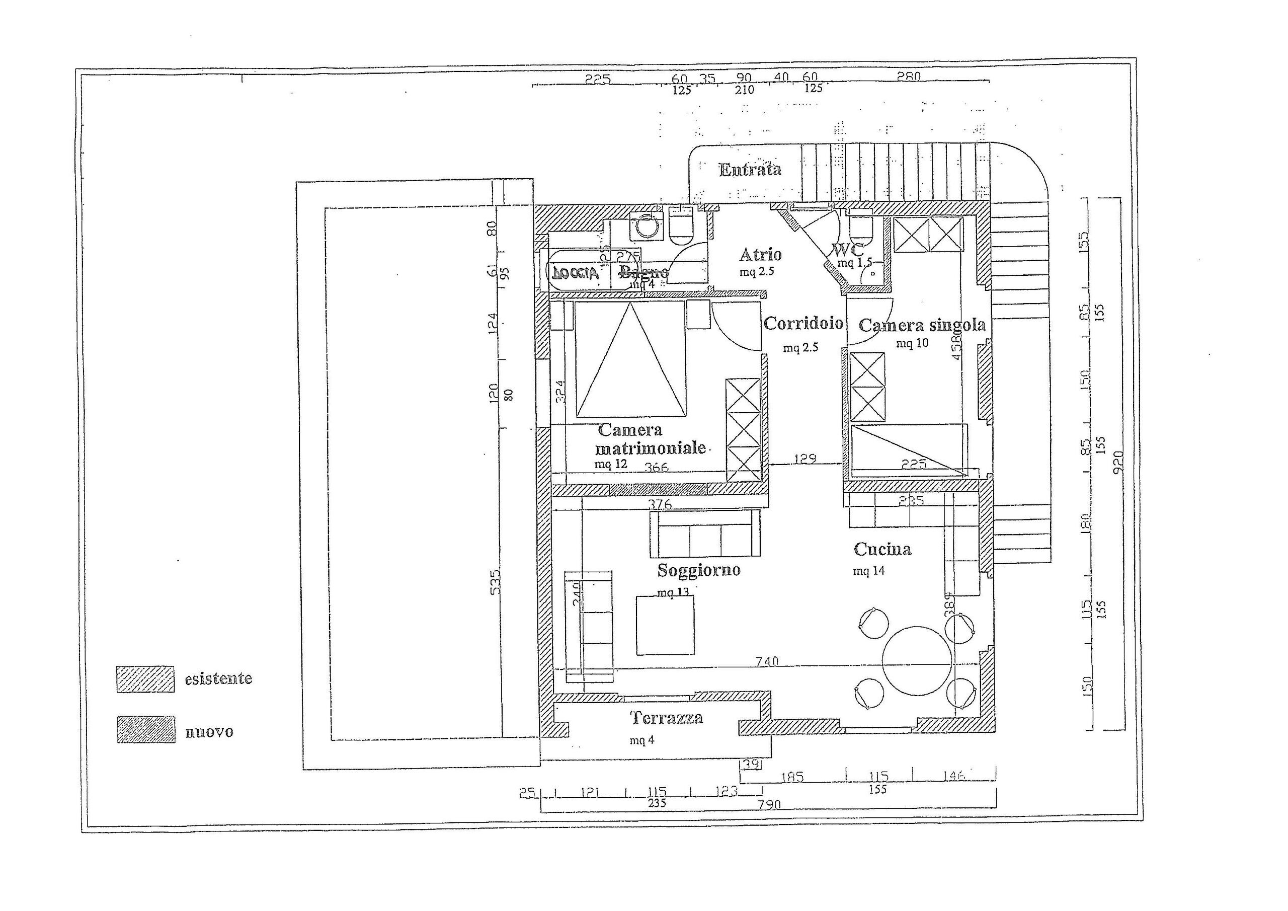
  • 1. Stock: 3-Zimmer-Wohnung mit offenem Wohn- und Küchenbereich und Zugang zur Terrasse, Hauptschlafzimmer, kleines Schlafzimmer, Badezimmer und Gäste-WC.
  • Untergeschoss: Besteht aus drei Kellern, einem Waschraum und einem Technikraum.

Beide Wohneinheiten sind derzeit vermietet.
Eine Garage und drei Aussenparkplätze runden das Angebot ab.

Angaben

Kategorie
Doppeleinfamilienhaus
Referenz-Nr.
#5284015
Anzahl Zimmer
8
Anzahl Schlafzimmer
5
Anzahl Badezimmer
4
Grundstücksfläche
477 m²
Baujahr
1960
Letzte Renovierungen
2006
Heizanlage
Bodenheizung
Heizungstyp
Luft-Wasser-Wärmepumpe
Warmwasseraufbereitung
Luft-Wasser-Wärmepumpe
Verfügbarkeit
Nach Vereinbarung
Parking verfügbar
Ja, obligatorisch

Anzahl Parkplätze

Innen (inkl.)
1
Aussen (inkl.)
3
Bitte kontaktieren Sie michPDF Dokumentation

Ihr Ansprechpartner

Objekt : #5284015 / Doppeleinfamilienhaus / CH-6962 Viganello / CHF 1'280'000.-

?
Ich akzeptiere die Bedingungen bezüglich der Datenverarbeitung*
(*) Obligatorische Felder
[IMG]
Frau Sandra Gubelmann
+41 81 836 25 51
+41 79 309 10 06